Иногда студентам кажется, что какой-то очень злой человек хотел максимально усложнить им жизнь и придумал чертёжные рамки. Раньше их чертили самостоятельно — линейкой, рейсфедером, с замиранием сердца ведя тушью по трафарету. Потом появились уже кем-то напечатанные бланки, которые можно было купить в студенческом магазине. Сейчас печатают самостоятельно на принтере. Казалось бы, прогресс. Но занятие это ещё то: рамка постоянно съезжает, отступы нарушаются, а на каком-то конкретном принтере в аудитории рамка вообще не пропечатывается с левого края — именно там, где широкий отступ для подшивки. И преподаватель смотрит на это с видом человека, которому всё это давно надоело, но правила есть правила. До сих пор чертежные рамки для Ворд - один самых скачиваемых шаблонов студентами инженерных специальностей.
Так откуда вообще взялась эта традиция и можно ли с ней что-то сделать?
Откуда взялись чертёжные рамки

История чертёжных рамок уходит корнями в промышленную революцию XIX века. Когда производство начало масштабироваться, инженерам потребовался единый язык — способ передавать техническую информацию так, чтобы рабочий на заводе в одном городе мог точно воспроизвести деталь по чертежу, сделанному инженером в другом.
Первые попытки стандартизировать оформление чертежей предприняли в Германии и Великобритании в конце XIX века. Рамка выполняла сразу несколько функций: она обозначала рабочее поле чертежа, защищала информацию от повреждений при хранении и транспортировке, а главное — задавала место для основной надписи с данными о документе, исполнителе и дате.
В бывшем СССР эта система была формализована и закреплена стандартами ЕСКД — Единой системы конструкторской документации. Именно тогда рамка из просто удобного инструмента превратилась в обязательное требование, нарушение которого каралось возвратом чертежа на доработку.
Что такое ГОСТ 2.104 и почему он до сих пор действует
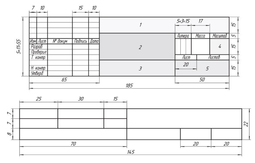
ГОСТ 2.104 — это государственный стандарт, регламентирующий основные надписи в конструкторских документах. Он устанавливает форму, размеры и порядок заполнения штампа (основной надписи), расположенного в правом нижнем углу чертежа. Стандарт был принят ещё в советское время, но продолжает действовать на территории Украины и ряда других постсоветских стран. Он определяет: ширину левого поля — 20 мм (для подшивки), остальных полей — 5 мм. Именно это асимметричное поле и является главным источником проблем при печати.
Зачем нужен широкий левый отступ
Это один из самых частых вопросов. Почему слева 20 мм, а не 5, как везде? Ответ прост и логичен: чертежи подшиваются в папки и архивы. При подшивке левый край документа частично скрывается под переплётом. Если бы поле было одинаковым со всех сторон, часть рабочей зоны или основной надписи оказалась бы недоступна.
То же самое, кстати, действует и для обычных офисных документов — ГОСТ на оформление текстовой документации тоже предписывает увеличенное левое поле. Так что это не прихоть чертёжников, а вполне прагматичное решение.
Почему рамка съезжает при печати — и что с этим делать
Вот здесь начинается самое интересное. Проблема со съехавшей рамкой — это не баг, это следствие нескольких совпавших факторов:
- Каждый принтер имеет свои аппаратные поля печати — минимальные отступы от края листа, которые он физически не может пропечатать. У одних принтеров это 3 мм, у других — 8 мм и более.
- Когда файл с рамкой создавался, он настраивался под конкретный принтер. На другом принтере координаты съезжают.
- Масштабирование при печати — если в настройках стоит "вписать в страницу" или "масштаб 97%", рамка уменьшается, и отступы перестают соответствовать ГОСТу.
- Ориентация листа и формат бумаги — ещё один источник неожиданностей.
Что реально помогает:
- Печатать всегда с масштабом 100%, без автоподгонки.
- Перед первой печатью на новом принтере распечатать тестовый лист и замерить реальные поля линейкой.
- Если рамка сделана в Word — проверить, что поля документа выставлены точно по ГОСТу, а сама рамка нарисована через таблицу или границы страницы, а не вставлена как изображение.
- Если рамка в PDF — убедиться, что при экспорте не было масштабирования.
- В AutoCAD и аналогах — настраивать печать через "Plot" с явным указанием масштаба 1:1 и отключённой опцией "Fit to paper".
Рамка в Word: самый частый источник боли
Word — программа для текстов, а не для чертёжной документации. Но студенты чаще всего работают именно в нём, особенно для пояснительных записок с рамкой. Главная ошибка — вставлять рамку как картинку. Картинка ведёт себя непредсказуемо: масштабируется, смещается, не попадает в поля печати.
Правильный способ — использовать колонтитулы. Рамку помещают в область нижнего (или верхнего) колонтитула в виде таблицы с точными размерами. Это даёт стабильное положение на каждой странице и корректно печатается на большинстве принтеров. Штамп (основная надпись) тоже вставляется как таблица внутри колонтитула — с фиксированными размерами ячеек.
Колонтитул в Word — это область страницы вне основного текстового потока. Всё, что помещается туда, повторяется на каждой странице документа и не сдвигается при редактировании основного текста.
AutoCAD и специализированные программы
Если чертёж делается в AutoCAD, КОМПАС-3D или аналогах, там ситуация принципиально другая. Эти программы изначально созданы для технической документации и содержат встроенные шаблоны рамок по ГОСТ. В КОМПАС-3D, например, при создании нового чертежа сразу предлагается выбрать формат листа и тип основной надписи — программа сама нарисует рамку правильно.
Проблемы здесь возникают только на этапе печати — нужно правильно настроить параметры принтера и масштаб вывода. Сохранение в PDF перед печатью заметно снижает количество неожиданностей: PDF фиксирует геометрию документа, и принтер получает уже готовую картинку нужного размера.
Есть ли альтернатива рисованию рамок вручную
Да, и давно. Существуют готовые шаблоны для Word, LibreOffice, AutoCAD, КОМПАС, которые можно скачать и использовать как основу. Некоторые университеты выкладывают официальные шаблоны на своих сайтах — это самый надёжный вариант, потому что там уже учтены конкретные требования кафедры.
Ещё один вариант — онлайн-сервисы для генерации рамок. Вводишь формат, тип штампа, данные — получаешь PDF или DXF. Для разовых задач вполне рабочий подход.
Лайфхак, который знают не все: если в вашем университете есть лицензионный КОМПАС или AutoCAD в компьютерном классе — попросите преподавателя показать, как создать шаблон с рамкой один раз и использовать его для всех последующих работ. Это займёт полчаса и сэкономит много нервов за весь период обучения.
Рамки в эпоху электронных документов
Интересный момент: современные стандарты ЕСКД уже давно описывают требования к электронным конструкторским документам. Там рамки тоже есть — но их роль немного меняется. В электронном документообороте рамка скорее является визуальным маркером документа, а метаданные (кто создал, когда, что изменял) хранятся отдельно в свойствах файла или базе данных PDM-системы.
Тем не менее при выводе на печать рамка остаётся обязательной. Потому что бумажные архивы никуда не делись, подпись живого человека на бумаге всё ещё имеет юридическую силу, а производство во многих местах до сих пор работает с распечатанными чертежами.
Так что пока студенты будут сдавать чертежи на бумаге — рамки никуда не денутся. Но понимать, откуда они взялись и как с ними правильно работать, всё-таки полезно. Это не бессмысленная бюрократия, а система, у которой есть вполне конкретная история и логика. Другой вопрос — насколько эта логика актуальна в 2026 году, когда большинство инженерных расчётов и согласований давно ушли в облака. Как думаете — пора ли окончательно отказаться от бумажных чертёжных стандартов или они ещё долго будут жить? Напишите в комментариях, особенно если вы уже работаете в инженерной сфере и знаете, как это выглядит на практике.
Похожие публикации